Dirección

  • Dirección Av. Corrientes 2140 Capital Federal Balvanera
  • Barrio Balvanera
  • País Argentina

Descripción

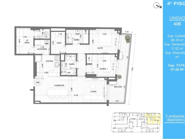
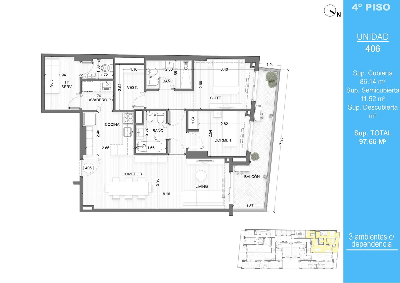
Departamento de 3 ambientes con dependencia.Habitación principal en suite con vestidor, segunda habitación, baño completo, cocina comedor y amplio balcón con salida desde todos los ambientes.

FORMA DE PAGO

ADELANTO Y CUOTAS EN PESOS+CAC

Directo Desarrolladora, SIN COMISIÓN INMOBILIARIA
Las medidas y especificaciones pueden variar sin previo aviso.
Las superficies serán las que surjan del plano MH de subdivisión en propiedad horizontal y las imágenes son ilustrativas y puede sufrir modificaciones.

“Sky Desarrollos es una empresa especializada en inversiones inmobiliarias en ubicaciones estratégicas. Sus proyectos se destacan por su óptima calidad constructiva y sus terminaciones siempre cuidadas al detalle. Actualmente cuenta con más de 20 años de trayectoria y 42 edificios entregados. La empresa tiene su propio estudio de arquitectura, Soae Iskandarani Arquitectos, lo que garantiza solidez a la hora de ejecutar los proyectos.”


Descripción del emprendimiento

Edificio de categoría ubicado sobre la Avenida Corrientes entre Junin y Uriburu, en pleno corazón de Balvanera, a metros de la estación de subte y rodeado de una amplia oferta comercial, gastronómica y cultural.

Las unidades son departamentos de 2 dormitorios, 1 dormitorios ,monoambientes y semipisos para oficinas.

Contará con un gran parque verde en el pulmón de manzana.

2 subsuelos de cocheras

Amenities:

*Salón de eventos en piso 2
*Piscina con solarium en piso 2
*Parrillas al aire libre
*Espacio para sucá en patio piso 2
*Plaza de juegos infantiles en patio piso 2
*Gimnasio equipado
*Laundry

Forma de pago:

*Adelanto y cuotas en pesos + CAC.
*Directo Desarrolladora, SIN COMISIÓN INMOBILIARIA!

Terminaciones de Categoría:

*AGUA CALIENTE Central
*CALEFACCIÓN Equipos split
*AIRE ACONDICIONADO Con instalación y equipos
*MUEBLES DE COCINA Terminación en melamina
*ARTEFACTOS DE COCINA Anafe y horno eléctricos o cocina eléctrica
*GRIFERÍAS Marca FV o similar
*MESADAS Granito o similar
*CARPINTERÍAS Aluminio anodizado natural línea A40 o similar con DVH
*REVESTIMIENTOS Porcellanatos en estar comedor, cocinas y baños
*ARTEFACTOS SANITARIOS Marca Ferrum o similar
*PUERTAS INTERIORES Marcos y hojas de madera
*FRENTES DE PLACARD Puertas espejadas con interiores completos

“Sky Desarrollos es una empresa especializada en inversiones inmobiliarias en ubicaciones estratégicas. Sus proyectos se destacan por su óptima calidad constructiva y sus terminaciones siempre cuidadas al detalle. Actualmente cuenta con más de 20 años de trayectoria y 42 edificios entregados. La empresa tiene su propio estudio de arquitectura, Soae Iskandarani Arquitectos, lo que garantiza solidez a la hora de ejecutar los proyectos.”

Actualizado el día: 2025-11-07 10:15:06

Detalles

Actualizado en noviembre 7, 2025 a 10:15 am
  • Tamaño: 86.14 M2
  • Terreno: 97.66 M2
  • Dormitorios: 2
  • Habitaciones: 3
  • Baños: 2
  • Año de construcción: -1
  • Tipo: Departamento
  • Estado: Disponible, Venta

¿Qué hay cerca?

Educación
Centro Cultural Ricardo Rojas (0.1 km)
Bueno 5 opiniones
Escuela Da Vinci (0.1 km)
Excepcional 2 opiniones
Escuela Da Vinci (0.1 km)
Bueno 2 opiniones
Comida
Café Martínez (0.03 km)
Bueno 1 opiniones
Manos Criollas (0.04 km)
Promedio 1 opiniones
The Coffee Store (0.06 km)
Excepcional 1 opiniones
Salud y Medicina
FES Dental (0.01 km)
0 opiniones
Consultorios Junín (0.02 km)
0 opiniones
Centro de Estudios Carolina Muzzilli (0.08 km)
0 opiniones

Departamentos disponibles

Comparar listados

Comparar